
Residential
The conversation with this house starts with the wish to create a co-living environment between the human residents and their animal pets. Cutting through various parts of the house, breathable voids bring natural light and air to the animal sanctuary while making efficient use of the land’s buildable area.
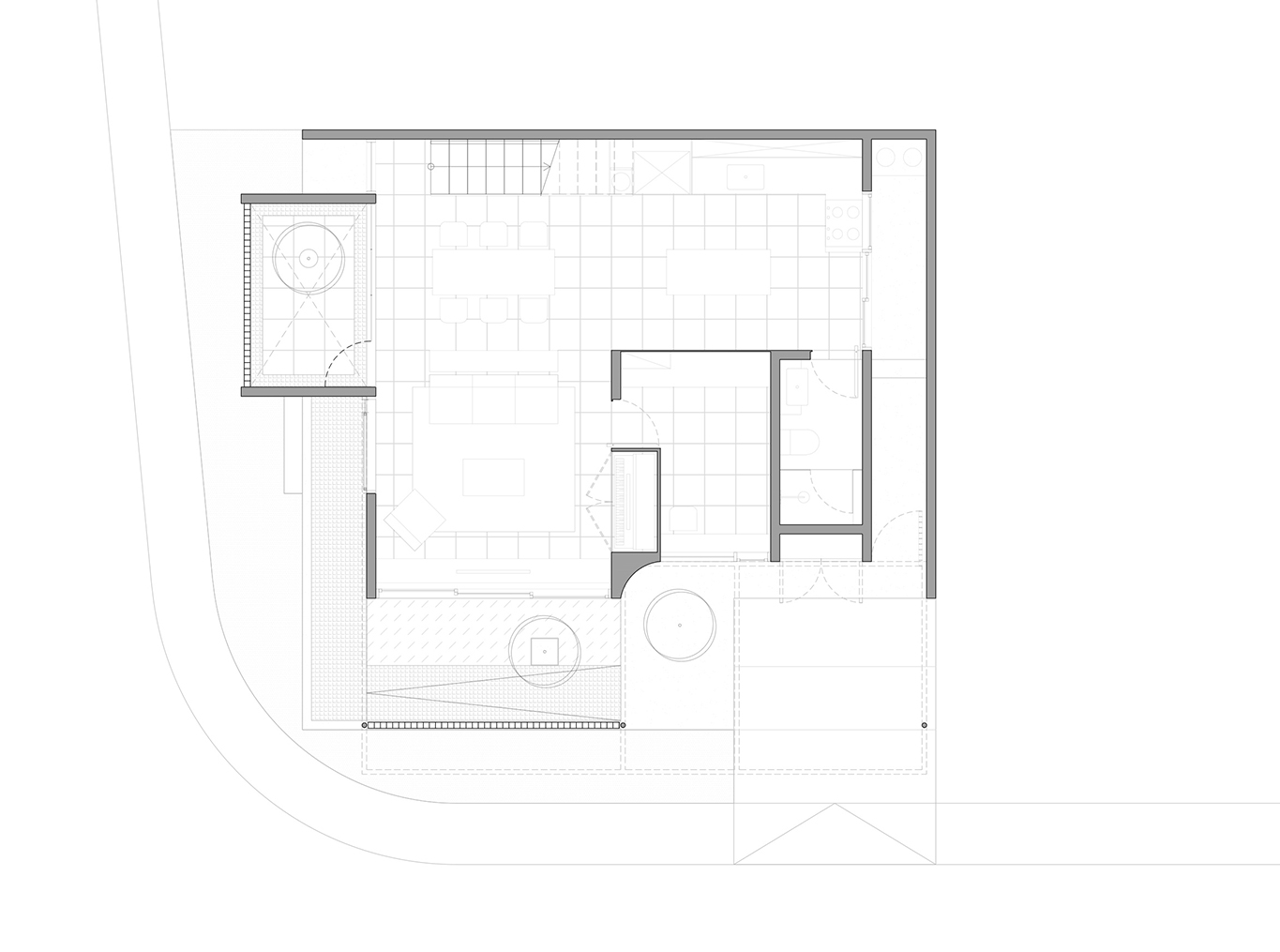
TD House
The conversation with this house starts with the wish to create a co-living environment between the human residents and their animal pets. Cutting through various parts of the house, breathable voids bring natural light and air to the animal sanctuary while making efficient use of the land’s buildable area.
Material and color also play an important role in establishing a dialogue between the homeowners and their beloved pets. Through the glass block facade, sunlight reaches the fish pond and living area of the house while allowing privacy to the residents.



Red hues are playfully spread around the interior floor tiles and exterior walls as a contrast to the greenery of the animal’s nests, recalling their natural habitat.


Location
Bumi Serpong Damai, Tangerang Selatan
Year
2023
Floor area
200 m2
Visualization
Koma Visualization
General contractor
Private contractor